Our HT72 hydraulic drilling jumbo is engineered for high-performance medium- to deep-hole drilling and it is particularly effective in fan-shaped and cluster hole operations. This hydraulic drilling jumbo excels in small cross-section tunnels, offering exceptional maneuverability even in narrow underground environments.
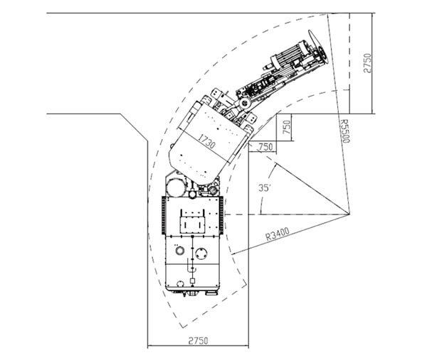
Equipped with a versatile articulated boom that integrates swing and translational motion, the hydraulic drilling jumbo achieves full 180° horizontal and vertical coverage. This allows the jumbo to drill across wide areas from a single position, ideal for complex, multi-angle blast hole drilling.
Designed with operator safety in mind, the hydraulic drilling jumbo features a reinforced canopy to protect against falling rocks, delivering comprehensive on-site protection. It ensures that your crew stays safe while maintaining peak efficiency in demanding mining operations. Transform the way you drill with a solution that expands your reach, protects your team, and keeps your operation moving with precision.
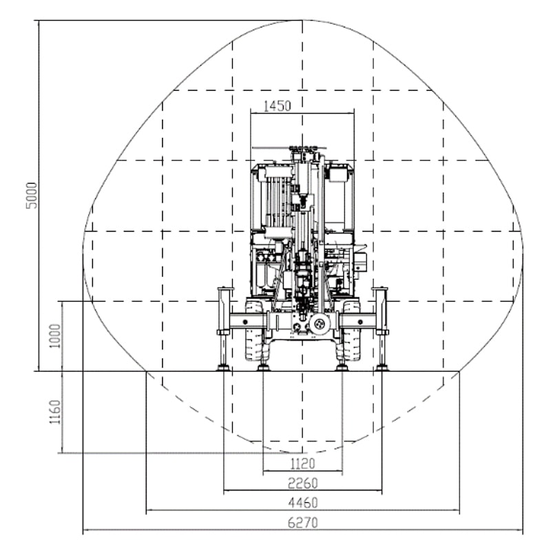
Details| Drilling rig | Drilling coverage | 4000×4000mm-6100×6100mm | |
| Dimensions | 8700×1750×2140(2850)mm | ||
| Ground clearance | 320mm | ||
| Min. turning radius | Inside 3400mm Outside 5500mm | ||
| Gradeability | 14° | ||
| Weight | 15000kg | ||
| Rock drill | Model | YYG22U | HC95 |
| Impact power | 22kW | 24kW | |
| Impact frequency | 55Hz | 57Hz | |
| Impact pressure | 180-220bar | 200bar | |
| Rotation system | Independent rotation | Independent rotation | |
| Rotation speed | 0-220r/min | 0-236r/min | |
| Max. rotation torque | 1000Nm | 764Nm | |
| Feed | Total length | 3000mm | |
| Drill steel length | 915mm | ||
| Weight | 650kg | ||
| Feed force | 13kN | ||
| Storage capacity of rods | 13/15 rods | ||
| Max. hole depth | 35000mm | ||
| Boom | Feed compensation | 750mm | |
| Guide shell rotary angle | ±180° | ||
| Guide shell turning angle | ±180° | ||
| Guide shell swing angle | Down 5°, up 95° | ||
| Boom tilt angle | +50°/-30° | ||
| Swing angle | ±35° | ||
| Boom telescopic extension | 1250mm | ||
| Air system | Air compressor model | GCU11 | |
| Air tank capacity | 25L | ||
| Air displacement (8bar) | 1m³/min | ||
| Electrical system | Installation power | 85.5kW | |
| Main motor power | 75kW | ||
| Voltage | 380V (customizable) | ||
| Hydraulic system | Oil tank capacity | 180L | |
| Filtration | 10μm | ||
| Chassis | Engine | Yanmar diesel engine | |
| Rated output power (2200r/min) | 53.7kW | ||
| Torque (1650r/min) | 308Nm | ||
| Diesel tank capacity | 55L | ||
| Steering angle | ±35° | ||
| Emission filter | DOC+DPF | ||
| Cable length | 70m | ||
Huatai is a Chinese company specialized in the design and batch production of rock drilling equipment. Since its inception in 2000, the company has been committed to manufacturing cutting edge products and providing the highest levels of customer service for a number of enterprises engaged in the mining, metallurgical and foundation engineer sectors.
Huatai has achieved continuous self-transcendence and filled several gaps in the domestic market through 20 years of ongoing innovation and development in the underground mining and rock drilling industry. Today, our product line includes more than 30 types of mine rock drilling machines which are fallen into three categories, i.e. underground mining equipment, coal mining equipment and shaft drilling jumbos. Years of our constant growth and improvement have resulted in a respectable achievement in the domestic rock drilling machine industry, increasing the safety, efficiency, and cost-effectiveness for underground mine engineering and tunneling construction operations.
The GYSJZ shaft drilling jumbo is a specialized, high-performance drilling machine developed to meet the demands of deep, hard-rock vertical shaft excavation. The drilling machinery is powered by a robust 132kW motor and equipped with three heavy-duty hydraulic drifters, enabling it to handle drilling diameters from 4 to 6 meters.
Read More +
YSJZ shaft drilling jumbo is a type of rock drilling machinery specially designed for vertical shaft construction in iron ore and non-ferrous metal mines. The shaft jumbo is a great alternative to be used in mining and underground construction projects where other drilling methods couldn't be adopted due to their technical or economic limits.
Read More +
SJZ series vertical shaft drill is a special equipment to drill blastholes for construction of vertical shaft. It suits a wide range of shaft diameters, and features of flexible operation, precise positioning and reliable safety.
Read More +
Purpose-built for medium-hard rock formations, the RC600 hydraulic drifter delivers powerful and precise drilling across a wide range of demanding applications. Its robust design and versatile capabilities make it the perfect choice for support drilling in underground mining, anchor bolt installation, highway construction, bridge engineering, and complex building projects.
Read More +