The HT221 hydraulic drilling jumbo is purpose-built for tunneling and excavation in narrow underground spaces, including metal mines and other confined environments. With a coverage area of up to 33 m², this intelligent tunneling jumbo delivers high-efficiency performance through its advanced full-hydraulic rock drilling system equipped with an anti-jamming mechanism for faster, more stable operation.
Designed with user-friendly controls and a high degree of automation, this hydraulic drilling jumbo minimizes operator skill requirements while offering intelligent functionality to support a smoother workflow. A wide range of configuration options is available to suit your specific project needs. Its compact structure and agile mobility significantly enhance the working environment and help boost both construction quality and productivity. Upgrade your underground worksite with a solution that improves efficiency, simplifies control, and adapts to your tunneling needs
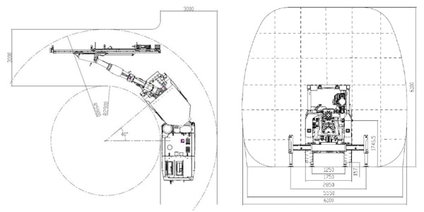
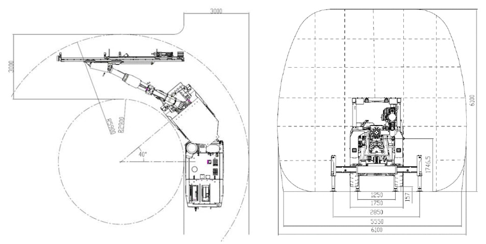
| Drilling rig | Drilling coverage | 3000×3000-6600×6000mm | |||
| Min. turning radius | Inside 2800mm Outside 4900mm | ||||
| Dimensions | 11510×1750×2208(2918)mm | ||||
| Gradeability | 14° | ||||
| Ground clearance | 365mm | ||||
| Weight | 13500kg | ||||
| Rock drill | Model | RC2200 | YYG18U | YYG22U | HC95 LMA |
| Impact power | 21kW | 18kW | 22kW | 21kW | |
| Impact frequency | 55Hz | 57Hz | 53Hz | 55Hz | |
| Impact pressure | 120-220bar | 180-200bar | 180-200bar | 165-200bar | |
| Rotation system | Independent rotation | ||||
| Rock drill length | 931mm | 1007mm | 1007mm | 987mm | |
| Shank adapter | T38, R38, T45 | T38 | T38 | T38, R38 | |
| Feed | Total length | 5262/5972mm | 5450/6040mm | 6040mm | 5972mm |
| Drill steel length | 3700/4305mm | 3700/4305mm | 4305mm | 4305mm | |
| Drill hole depth | 3370/3970mm | 3370/3970mm | 3970mm | 3970mm | |
| Feed force | 13kN | 13kN | 13kN | 13kN | |
| Boom | Feed compensation | 1250mm | |||
| Horizontal hole | Full coverage | ||||
| Guide shell rotary angle | ±180° | ||||
| Feed tilt angle | +90°/-5° | ||||
| Boom tilt angle | +60°/-30° | ||||
| Swing angle | ±35° | ||||
| Boom weight | 2565kg | ||||
| Boom telescopic extension | 1450mm | ||||
| Air & water system | Max. pump displacement (12bar) | 4m³/h | |||
| Air tank capacity | 56L | ||||
| Air displacement | 1m³/h | ||||
| Installation power | 87.5kW | ||||
| Main motor power | 75kW | ||||
| Voltage | 380V (customizable) | ||||
| Hydraulic system | Oil tank capacity | 185L | |||
| Filtration | 10μm | ||||
| Chassis | Engine brand/power | Cummins engine (III), 74kW Cummins engine (IV), 81kW Cummins engine (V), 90kW | |||
| Diesel tank capacity | 60L | ||||
Huatai is a Chinese company specialized in the design and batch production of rock drilling equipment. Since its inception in 2000, the company has been committed to manufacturing cutting edge products and providing the highest levels of customer service for a number of enterprises engaged in the mining, metallurgical and foundation engineer sectors.
Huatai has achieved continuous self-transcendence and filled several gaps in the domestic market through 20 years of ongoing innovation and development in the underground mining and rock drilling industry. Today, our product line includes more than 30 types of mine rock drilling machines which are fallen into three categories, i.e. underground mining equipment, coal mining equipment and shaft drilling jumbos. Years of our constant growth and improvement have resulted in a respectable achievement in the domestic rock drilling machine industry, increasing the safety, efficiency, and cost-effectiveness for underground mine engineering and tunneling construction operations.
WPZ-37/600 coal mine repair machine is specially constructed for coal mine repair and maintenance, which is useful mining equipment for removing the road blockage in the mines. It can be equipped with a hydraulic breaker to crush rocks and coal blocks in an efficient manner.
Read More +
YSJZ shaft drilling jumbo is a type of rock drilling machinery specially designed for vertical shaft construction in iron ore and non-ferrous metal mines. The shaft jumbo is a great alternative to be used in mining and underground construction projects where other drilling methods couldn't be adopted due to their technical or economic limits.
Read More +
SJZ series vertical shaft drill is a special equipment to drill blastholes for construction of vertical shaft. It suits a wide range of shaft diameters, and features of flexible operation, precise positioning and reliable safety.
Read More +
The GYSJZ shaft drilling jumbo is a specialized, high-performance drilling machine developed to meet the demands of deep, hard-rock vertical shaft excavation. The drilling machinery is powered by a robust 132kW motor and equipped with three heavy-duty hydraulic drifters, enabling it to handle drilling diameters from 4 to 6 meters.
Read More +